施工事例
Works
枚方市 M様邸

IMG_1119

IMG_1127

IMG_1230

IMG_1199

IMG_1131

IMG_1241

IMG_1107

IMG_1098

IMG_1135

IMG_1186

IMG_1187

IMG_1188

IMG_1196

IMG_1197

IMG_1103

IMG_1184

IMG_1150

IMG_1144

IMG_1149

IMG_1152

IMG_1166

IMG_1092

IMG_1115

IMG_1226

IMG_1165

IMG_1211

IMG_1216

IMG_1154

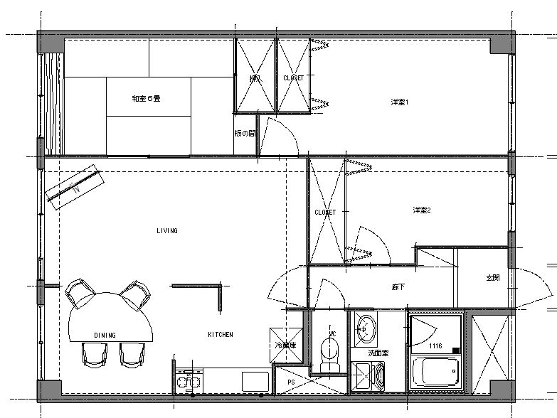
M様邸Before図面

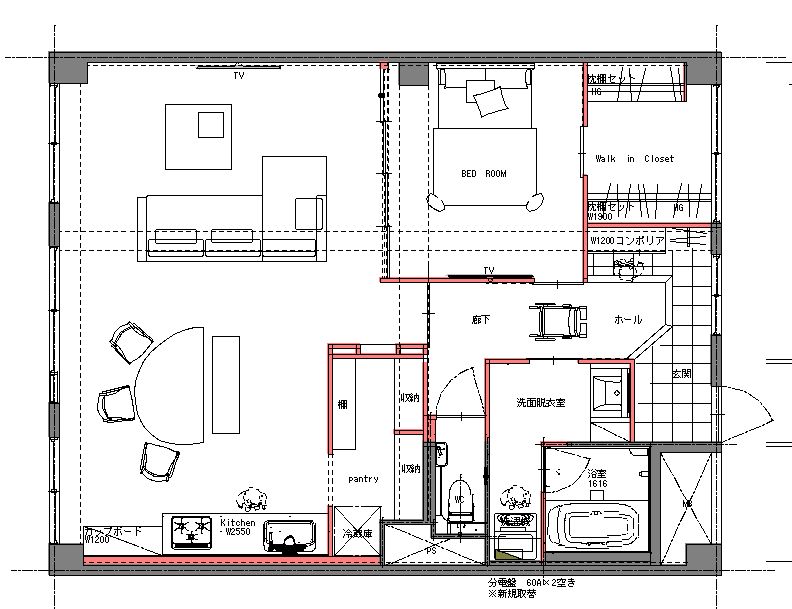
M様邸After図面

IMG_1246

IMG_1151
間取り
![$floor_before['title']](https://e-smileclub.co.jp/wp-content/uploads/2025/09/97550897bad6ec834e09813c65b21a8d.jpg)
家族の時間からお二人の時間へ・・・思い出のお部屋がもったいなくもありました。
お子様が巣立たれ、お二人の新しい暮らしの形が始まりました。 これまでの間取りのままでは、お子様のお部屋が荷物置きとなり、実際に使われているのは和室とLDKのみという状況に。お風呂や洗面はやや手狭で、家事動線にも改善の余地がありました。 また、キッチンはリビングから少し離れた独立型で、ご家族とのコミュニケーションが取りづらい間取りでした。お部屋全体の広さを十分に活かしきれず、壁によって分断された空間がもったいなく感じられていました。これからのお二人の暮らしをより快適に、そして“終の棲家”として同じ環境・同じ景色の中で新しい時間を紡いでいくためのリノベーションが始まりました。
![$floor_after['title']](https://e-smileclub.co.jp/wp-content/uploads/2025/09/0e4a5e826189e807c9cc634880db0140.jpg)
温かみと静けさを両立した、終の住処リノベーション
お子様が巣立たれ、これから始まるお二人の暮らしに合わせ、空間のつながりと心地よい距離感を大切にした間取りへと生まれ変わりました。キッチンはあえて対面型にはせず、同じ空間にいながらもそれぞれの時間を楽しめる配置に。 寝室は、無駄のない広さで、心地よく過ごせるサイズ感に。リビング側・廊下側のどちらからもアクセスでき、生活動線がぐっと快適になりました。そして今回のリノベーションで特に気に入っていただいているのが玄関です。 以前は扉を開けるとまっすぐ廊下が伸び、室内が見通せる間取りでしたが、浴室や洗面室を広げたことで廊下の位置を変更。 洋室だったスペースを再構成し、新しい動線を生み出しました。玄関を開けた瞬間から“広さ”と“風通し”、そして“落ち着き”を感じられる空間になりました。お子様が帰省された際にもスーツケースを玄関に置くことができ、一斉に靴をぬぎ、皆さんでお部屋に向かって「ただいま~」と入られる。扉を開けると見慣れた絶景が目に飛びこんでまいります。手狭だった浴室は1116サイズから1616サイズになりゆったりと湯舟に浸かっていただけます。洗面室と洗濯スペースをL型に設け支度も家事も快適な空間になりました。終の住処でもありながら帰りたくなる実家でもある。そんな温もりに満ちたリノベーションになる様なプランを施主様と一緒に進めさせて頂きました。
担当者から
お客様と共に歩んだ時間が形になったリノベーション
今回のリノベーションは、お客様が大手企業と迷われた末に、私たちを信じてお任せくださったことから始まりました。 そのご期待に応えるべく、打ち合わせや工事の一つひとつをお客様と一緒に考え、悩み、喜びながら進めてまいりました。 完成までの道のりは決して短くはありませんが、信頼を肌で感じながら“共に走った時間”は、私たちにとってかけがえのない思い出です。リノベーションは、完成するまで本当に思い描いた通りになるのか、不安がつきものです。 だからこそ、完成後にいただいた「帰るのがこんなに楽しいなんて」「やってよかった」「子どもたちも喜んでくれている」といったお言葉、そして涙が出るほど嬉しかったGoogleの口コミは、スタッフ全員の心に深く刻まれています。 お客様の信頼と、私たちの想いが一つになって形になった今回のM様邸、ぬくもりに満ちた終の住処・・・ これからも末永く、このご縁を大切に歩んでいけたらと思います。
![$comment_image_01['title']](https://e-smileclub.co.jp/wp-content/uploads/2025/10/IMG_9262-scaled.jpg)
![$comment_image_02['title']](https://e-smileclub.co.jp/wp-content/uploads/2025/09/IMG_1151-scaled.jpg)
